📷 11 fotos disponibles
€ 600
AlquilerLibre
🛏️
4
Habitaciones
🛁
2
Baños
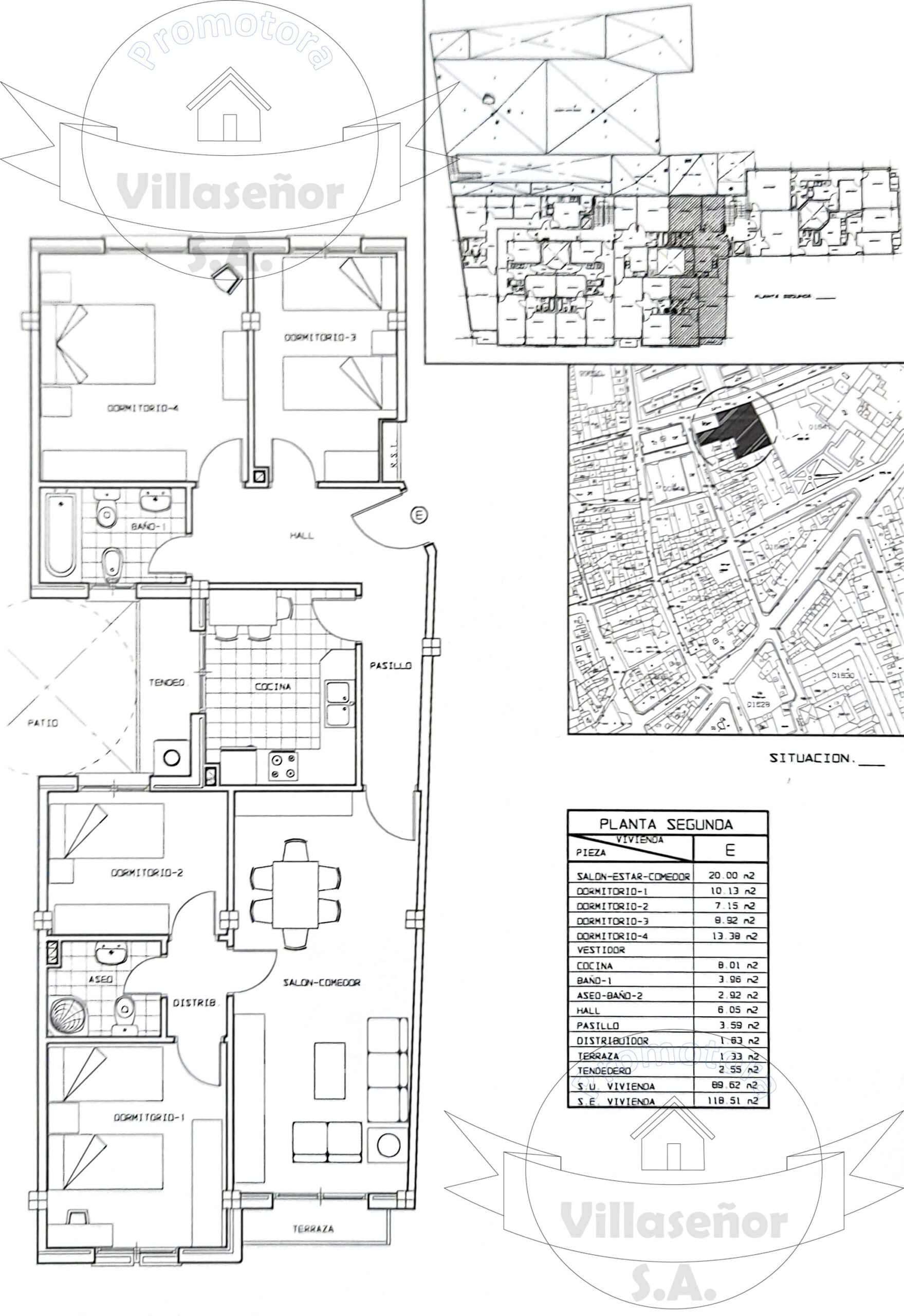
📏
119 m²
Superficie
🏗️
2002
Año construcción
📍 Ubicación
C/ SAN ANTON, 26 - 2 º E
Barrio: SAN ANTON
Localidad: Ciudad Real
📋 Información adicional
Servicios: Ascensor, Gas Natural, Calefacción individual, Cocina Equipada
Certificado energético: B
Referencia catastral: 0164110VJ2106S0055UK
🏠 Piso en alquiler C/SAN ANTÓN en el centro de Ciudad Real |119 m2| 🛏️4 🛁2|Cocina equipada | Ascensor
Descripción
Vivienda situada en la C/SAN ANTÓN en pleno centro de Ciudad Real, en una zona muy demandada por su excelente comunicación y todos los servicios a pie de calle. La vivienda dispone de una cocina amueblada y equipada 🍽️ (horno, vitrocerámica y extractor) y se entrega sin mobiliario en el resto del piso, ideal para personalizarlo a tu gusto. Edificio con ascensor 🛗 y acceso cómodo. Una opción perfecta para quienes buscan ubicación, comodidad y calidad de vida.
Destacados
- 📍 Ubicación céntrica
- 🛏️ Habitación 4
- 🛁 Baños 2
- 🍽️ Cocina equipada
- 🏖️ Gran Terraza
- 🛗 Ascensor
- 🚍 Bien comunicado












